Omschrijving Kenmerken Plattegrond Reageren

Omschrijving

Op een fijne en rustige locatie staat deze goed onderhouden eengezinswoning aan de charmante Koningshof 13. De woning is gelegen in een kindvriendelijke straat, met een speelpleintje en parkeergelegenheid om de hoek. Met maar liefst vijf slaapkamers, 7 zonnepanelen, een nieuwe cv-ketel en een diepe tuin met stenen berging biedt deze woning volop ruimte en comfort voor het hele gezin. De nette keuken en praktische indeling maken het geheel compleet.
De omgeving is prettig en groen, met diverse scholen, een Montessorischool en wijkcentrum op korte afstand. Winkelcentrum Bellestein ligt op circa vijf minuten fietsen en dankzij buslijn 1 zijn zowel het treinstation als het centrum van Ede goed bereikbaar. Een wijk waar kinderen veilig kunnen spelen en waar het dagelijks wonen aangenaam en ontspannen is.

Ben je benieuwd naar de sfeer en de ruimte die deze woning te bieden heeft? Maak dan een afspraak voor een bezichtiging en ervaar het zelf.

Indeling:
Begane grond:
Via de hal met meterkast en praktische garderobenis betreed je de lichte, bijna 10 meter lange woonkamer. Aan de voorzijde bevindt zich het gezellige zitgedeelte bij de houtkachel, met een prettig uitzicht op de rustige straat en het groen. Het eetgedeelte is aan de achterzijde gesitueerd, direct naast de open keuken. In de woonkamer en op vrijwel de gehele begane grond ligt een nette laminaatvloer, wat zorgt voor een rustige en uniforme uitstraling.

De keuken is een lichte en fijne ruimte en beschikt over een deur naar het terras en de achtertuin. Op de vloer liggen grote, donkergrijze tegels en de keuken is opgesteld in een praktische hoekopstelling met volop bergruimte in kasten en lades. Diverse inbouwapparatuur is aanwezig, grotendeels vernieuwd in de periode 2015–2025, waaronder een gaskookplaat, afzuigkap, oven, vaatwasser en een koel-/vriescombinatie.

Via het trapportaal bereik je het toilet, dat is uitgevoerd met een wandcloset en een fonteintje. Vanuit hier leidt de trap naar de eerste verdieping.

Eerste verdieping:
Vanaf de overloop zijn drie slaapkamers, de badkamer en een praktische inbouwkast bereikbaar. Aan de voorzijde bevindt zich een ruime slaapkamer met toegang tot het balkon. Aan de achterzijde liggen nog twee slaapkamers van goed formaat. Zowel op de overloop als in alle slaapkamers ligt laminaat en het behang op de wanden zorgt voor sfeervolle ruimtes.

De badkamer biedt comfort voor elk moment van de dag. Het ligbad heeft een prettig formaat en is geschikt voor jong en oud. Daarnaast is de badkamer uitgerust met een wandcloset, een hoge radiator en een tweepersoons wastafel met daarboven een grote spiegel voorzien van verlichting.

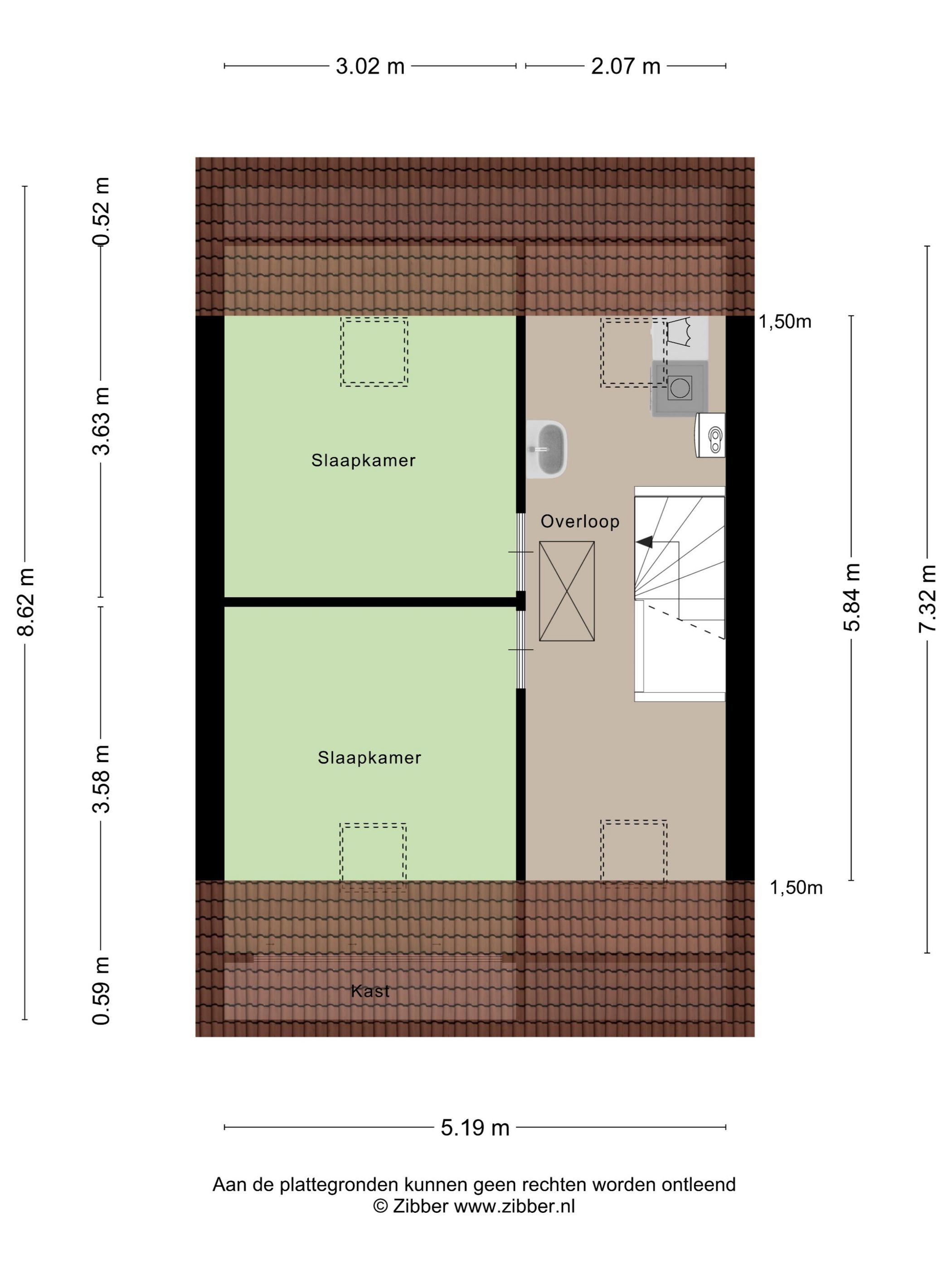
Tweede verdieping:
Waar je tot nu toe drie slaapkamers hebt gezien, biedt deze woning er in totaal maar liefst vijf. De twee extra slaapkamers bevinden zich op de tweede verdieping en zijn bereikbaar via een vaste trap. Je komt eerst op een ruime overloop met twee dakramen, wat zorgt voor veel daglicht. Hier vind je tevens een wastafel, de cv-ketel (2025), het ventilatiesysteem en de opstelling voor de wasapparatuur.

De slaapkamers op deze verdieping zijn identiek qua formaat en praktisch in te delen met een bed, bureau en kledingkast. In beide kamers ligt laminaat en het geheel maakt een zeer verzorgde en nette indruk. Ideaal als extra slaapkamers, werkruimte of hobbykamer.

Exterieur:
De voortuin is opvallend groen en heeft een royale lengte. Hierdoor lopen er geen mensen direct langs de woning en geniet je van veel privacy en een rustige ligging.

Vanuit de keuken stap je zo de diepe achtertuin in, gelegen op het noordwesten. De tuin is verzorgd aangelegd met een combinatie van kunstgras, bestrating en houten schuttingen, aangevuld met verhoogde borders en gevarieerde beplanting. Achterin de tuin staat een stenen (fietsen)berging, waaraan een praktische overkapping is gebouwd. Via de poort heb je toegang tot de achtergelegen steeg.
Of je de overkapping gebruikt als klusruimte, plek om te barbecueën of voor het stallen van een scooter of fietsen – de mogelijkheden zijn veelzijdig en sluiten aan bij verschillende woonwensen.

Bijzonderheden:
– Houten en kunststof kozijnen, voorzien van isolerende beglazing (m.u.v. raam bij wasmachine);
– CV-ketel 2025
– Vernieuwde mechanische ventilatieunit (2023);
– 7 zonnepanelen, geplaatst in 2023;
– Elektrisch bedienbare buitenzonwering (achterzijde);
– Vijf slaapkamers;
– Diepe voor- en achtertuin;
– Parkeergelegenheid en een speelpleintje om de hoek;
– Energielabel C

Verder lezen
Nieuwsgierig geworden? Maak een afspraak voor een bezichtiging!

    Kenmerken

    Overdracht
    Status Beschikbaar
    Aanvaarding In overleg
     
    Bouw
    Soort woning Eengezinswoning
    Bouwtype Tussenwoning
    Bouwjaar 1976
     
    Oppervlakten en inhoud
    Bruto inhoud 463 m³
    Perceeloppervlakte 143 m²
     
    Indeling
    Aantal verdiepingen 3
     
    Begane grond
    Aantal kamers 2
    Aantal slaapkamers 2
     
    Aantal kamers 3
    Aantal slaapkamers 3
     
    Aantal kamers 1
    Woonkamer lengte 456 cm
    Woonkamer breedte 519 cm
    Energie
    Isolatie Dakisolatie, vloerisolatie
    Soort verwarming Cv ketel
    Warm water Array
     
    Kadastrale gegevens
    Gemeente Ede
    Sectie F
    Perceel 4494
    Oppervlakte 143 m²
     
    Buitenruimte
    Tuintype Achtertuin
    Tuin breedte 550 cm
    Tuin lengte 1050 cm
    Tuin ligging Noordwest
    Tuin Achtertuin
    Oppervlakte tuin 58 m²
     
    Parkeergelegenheid
    Parkeer faciliteit Openbaar parkeren

    Plattegrond